Конструкция испытана по ГОСТ 30247.0-94 «Конструкции строительные. Методы испытаний на огнестойкость. Общие требования» и ГОСТ Р 53308-2009 «Конструкции строительные. Светопрозрачные ограждающие конструкции и заполнения проемов. Метод испытаний на огнестойкость» и сертифицирована с целью подтверждения соответствия ее характеристик требованиям Федерального закона №123-ФЗ от 22.07.2008 «Технический регламент о требованиях пожарной безопасности».
Конструкции противопожарных перегородок производятся на автоматическом оборудовании из стального профиля «Open Space – SRT», и поставляются в виде отдельных стоек и ригелей для сборки непосредственно на объекте.
Профили, «Open Space – SRT» выпускаемые из черной стали толщиной 2 мм, стали могут быть окрашены порошковыми красителями в соответствии с ГОСТ 9.410-88. Цвет покрытия определяется заказчиком по шкале RAL.
Полости в комбинированных профилях имеют одинаковую ширину, поэтому остекление может вестись как снаружи, так и изнутри. Для предотвращения разрушения при высокой температуре комбинированных профилей, алюминиевые части профиля стягиваются деталями из нержавеющей стали.
В качестве светопрозрачного заполнения используется огнестойкое стекло марки Pyrobel , производства концерна A G C. Заполнение крепится с помощью прижимных элементов из нержавеющей стали с применением керамических прокладок между стеклом и металлом. Стекло при установке в конструкцию перегородки опирается на подкладки. Материал подкладок – дерево, пропитанное специальным огнестойким составом.
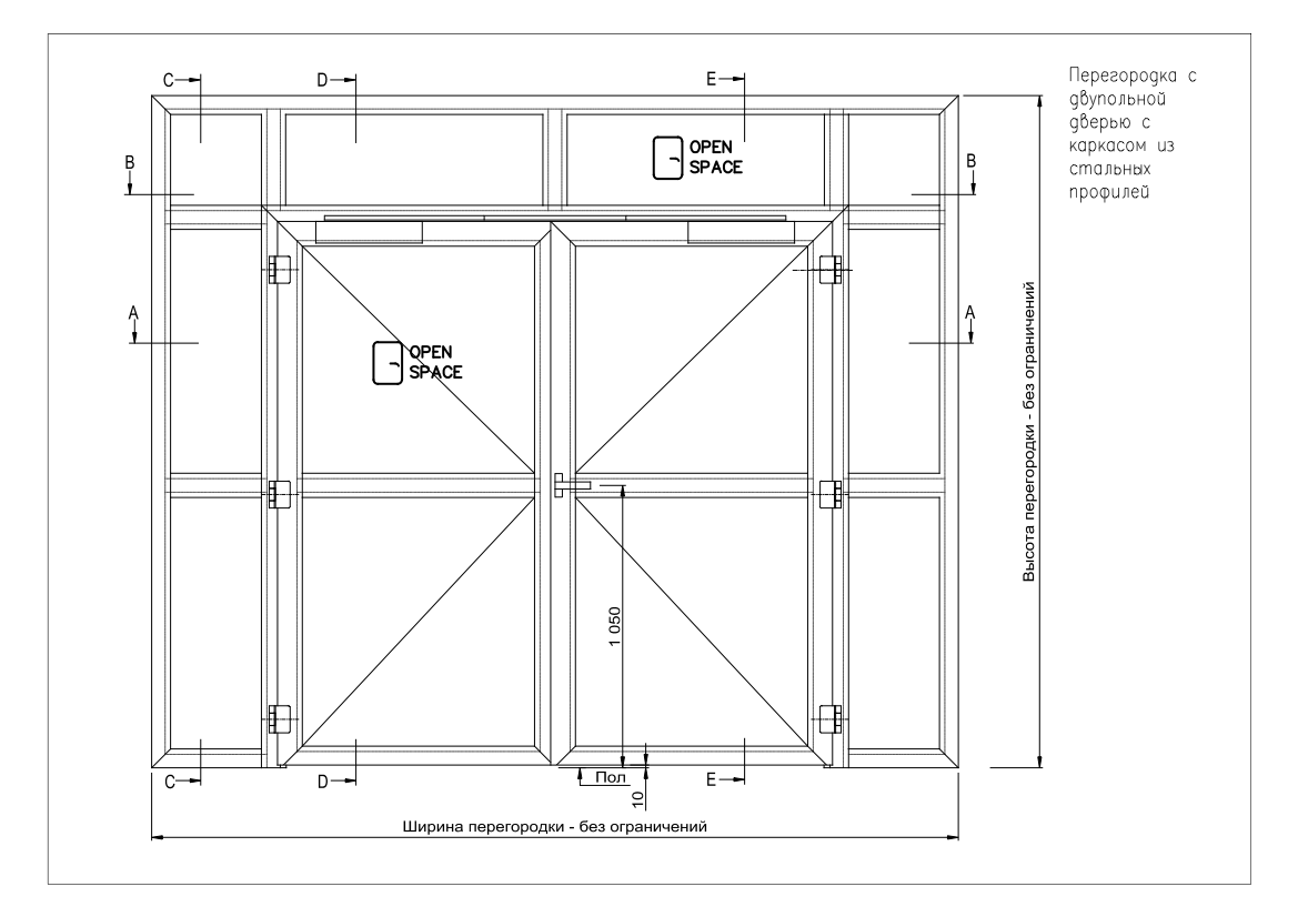
• Максимальные габаритные размеры двери: 2400 * 1000 мм
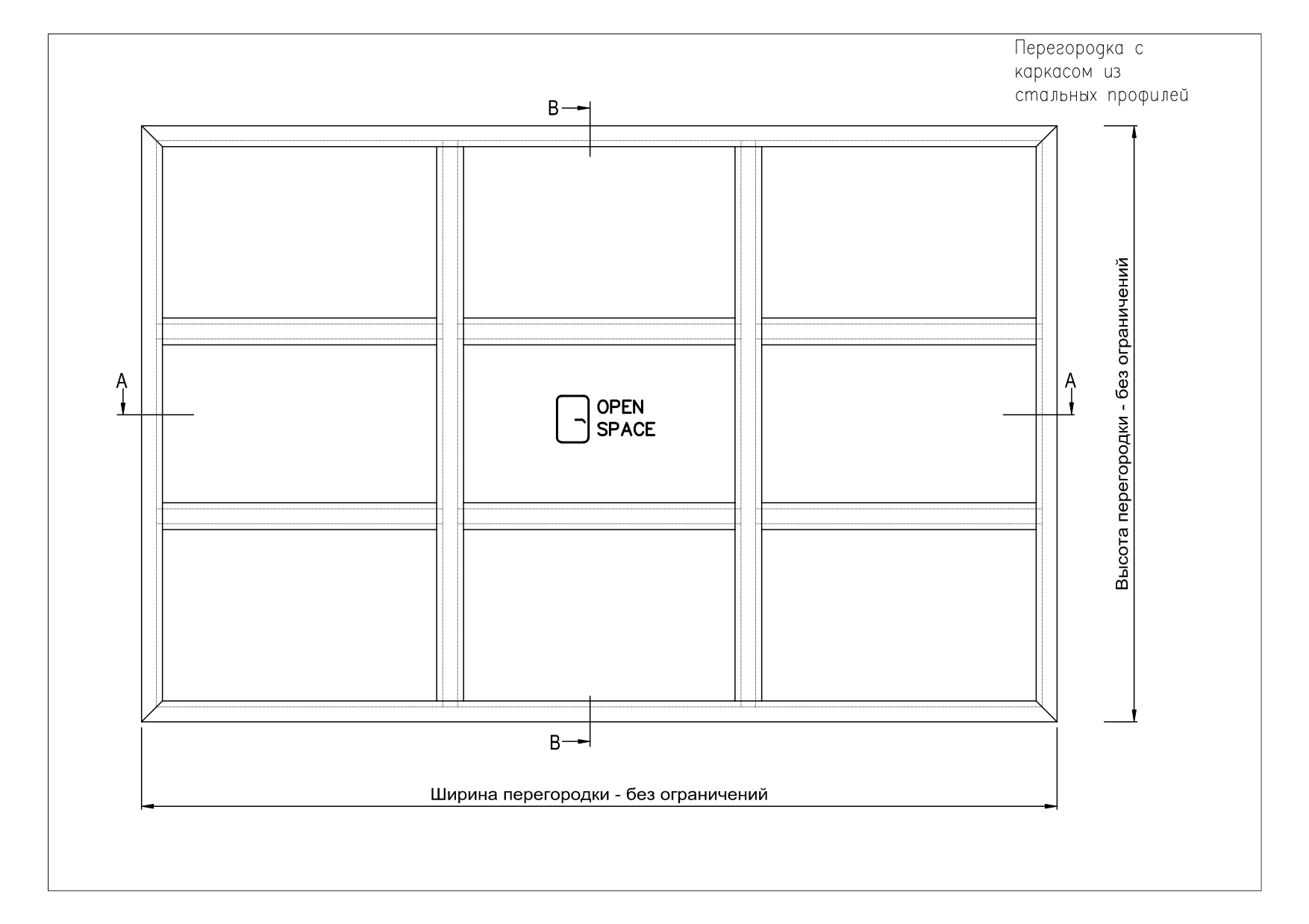
• Высота и ширина перегородки – без ограничений






